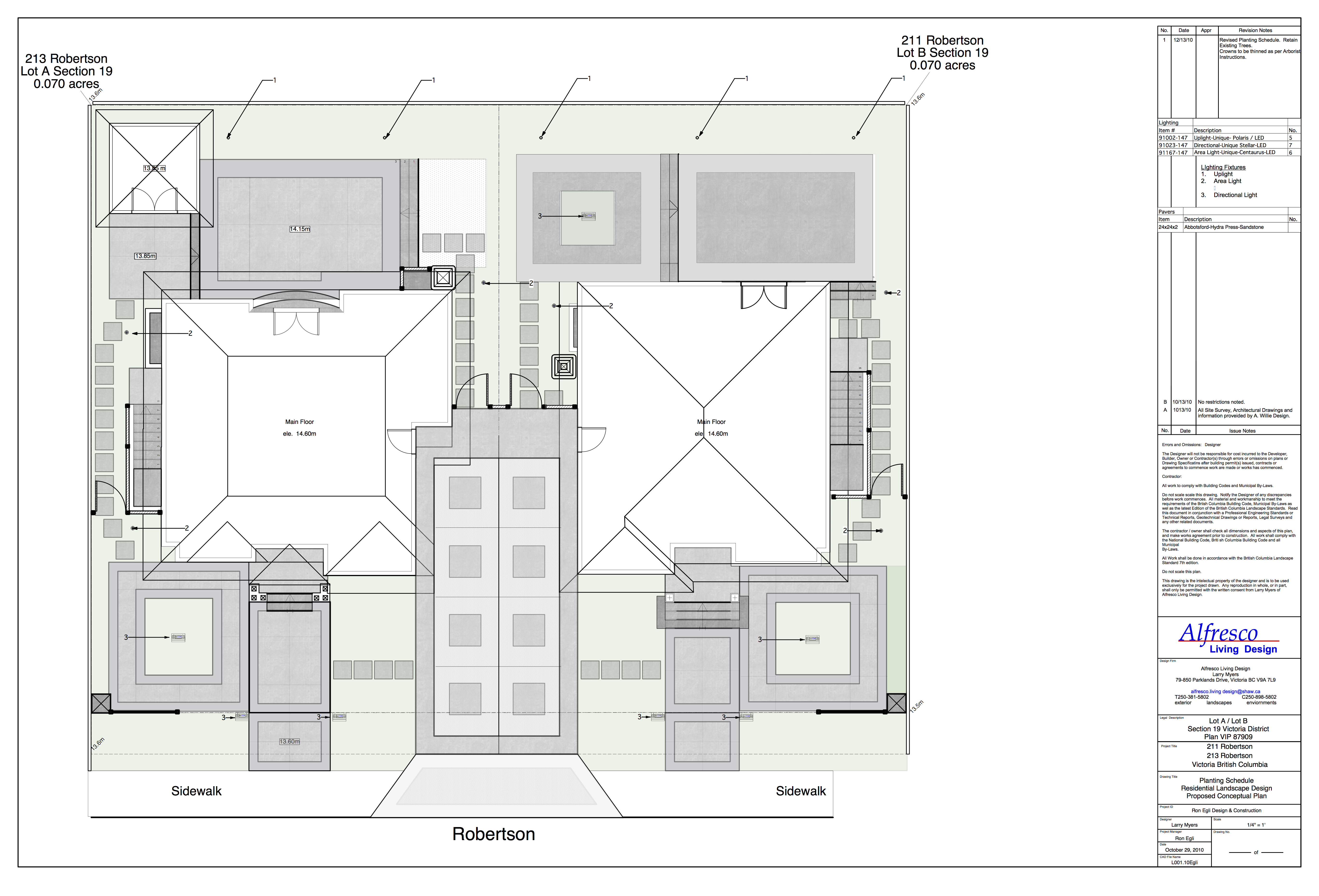
The two homes have a basement, main floor and upper floor, each with a foot print of approximately 750 square feet, and have a minimal set back. The residences are situated on respective properties of approximately 3000 square feet. The residences have an adjoining driveway and are situated parallel to one another on the properties. A conventional landscape would have appeared under scaled in comparison to the two structure. I felt it was necessary to have the landscape appear in context and of a scale with significant weight relative to the residences. In order to achieve this I increased the scale of the hardscaping element. The patios, walkways, and transitional hardscaping fits the scale of the residences even though there were significant spatial constraints.
The conceptual plan has a similar hardscape for each residence. The layout is the same for the front yards and entrances which differ only as a result of a grade change. From the street perspective there is a sense of symmetry and balance. The hardscape elements work in unison supporting one another and are of sufficient weight in relation to the residential structures. Keeping the layout of the hardscape similar created unity and flow.
I have observed that the tendency is to under scale elements. Part of the planning process is to ensure that the scale of elements are correct from an aesthetic and functional perspective. Many patios are too small for the intended use or furnishing selected. It is essential to identify the objective and function for each space and plan accordingly for the intended use. The contemporary landscape with its raised patios and lighting extends the living space and is designed for today’s lifestyle. The hardscape footprint was enlarged to provide flexibility and a diversity of usage. The patio has several levels which defines a specific area and is designated for a specific function. The hardscape footprint is in scale with the residence and reflects the clean lines of the residence. Size matters.
